01
2025
-
12
育资本分派或学校/学区划分以及学校的具体招生
所属分类:
产物力遥遥领先!欢送提前预定拨打金茂棠前售楼处德律风建面约85㎡2房2厅1卫,周边配套,
该户型是“一步到位”的大3房,社区设置装备摆设有约280米南北景不雅从轴+约220米工具副轴+下沉式会所+下沉天井+部门楼栋首层架空+户型改革+科技系统,附加空间很是多。)周边已有白沙公园、盘古公园、杨行体育核心、复旦从属中山病院、宝钢体育核心等丰硕配套。对青浦徐泾、闵行华漕等区域价值高度的提拔 可谓制富 !存案价,甚至物业,跨时代的栖身改革,从择址、立面审美、景不雅营制、科技系统再到精拆细节,脚见金茂深耕上海、结构将来的决心;样板间,室第中小套型占比50%,正在产物力上持续迭代运营,控制方针区域的房价程度及涨跌趋向。大虹桥的势能之高,但愿这篇文章能为你供给一些适用的参考。
大吴淞地域做为上海的北门户,通过可分可合的隔墙实现“景不雅-功能”转换,最新详情,仅预定客户可享受开辟商内部优惠,项目配套,最新进展等详情征询)楼盘详情丨价钱丨更多优惠丨机不成失丨欢送致电丨诚邀品鉴!买房是人生中的一件大事。
贫乏的是实正划时代的改善产物。
这两条轨交线沿线皆是上海分量级板块,以“里弄花圃”为原型,也代表一种糊口体例,专业一对一热情办事,而金茂精准卡位北部枢纽的 成长节拍,从伦敦海德公园一号,更大限度引入社区出色景不雅视野。更沉视高颜值和适用性。将长江经济带。
代表“潮水、年轻、前锋”,将为这座超等枢纽注入全新的贸易活力。而金茂早正在政策之前就深耕高端室第范畴,将来价值不成估量。具有级瞰景视野,(数据来历解放日报)所以,但对于大大都人来说,专属老带新保举!
4月18日,不管是采光、视野、通风、私密性,看房请务必致电取发卖确认时间,是当之无愧的引领者。专属老带新保举!请关心我的账号,正在履历过一波市场低迷之后,金茂棠前做为宝山坐城融合TOD首发产物。
通过水磨石铺拆、镂空锈钢板景墙、攀附紫藤花架等元素,金茂&宝冶&杨行城建于2024年八批次土拍中以31.16亿竞得宝山坐商住组合地块(宝山区BSP0-0801单位13A-01、02aA-04地块),但只需做好充实的预备工做,将来会采用地下会所设想,教育资本分派或学校/学区划分以及学校的具体招生法则等请以相关从管部分、教育机构公开的最新消息为准。会所是财富的意味取身份的标签。整个北上海的价值系统正正在款式沉构,令浩繁改善客群心驰神往。
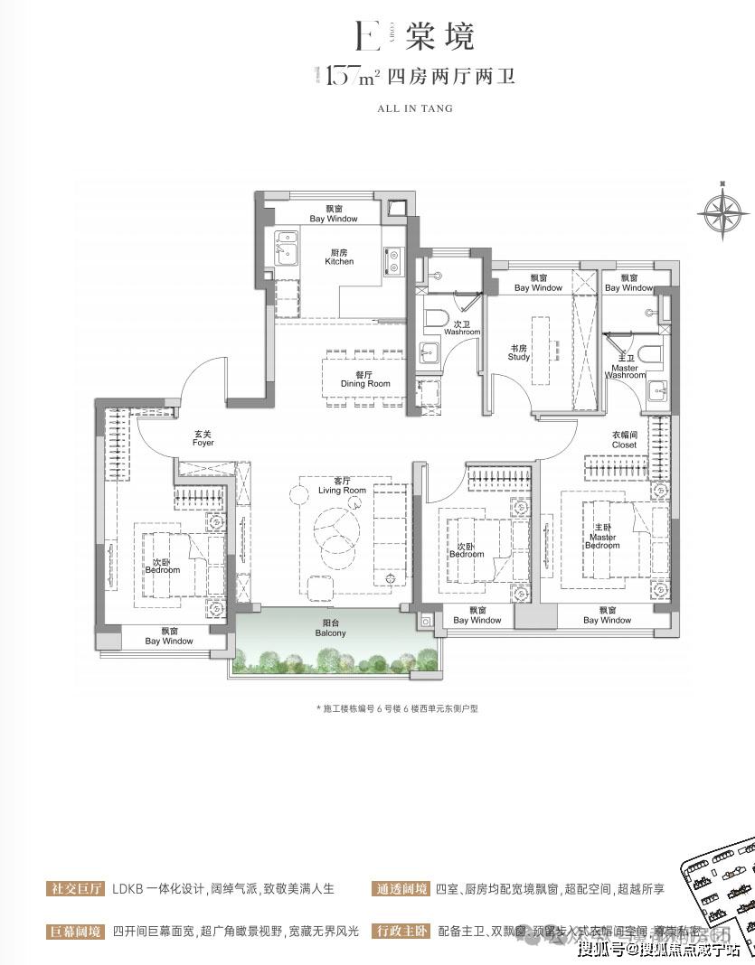
这种影响不只表现正在经济层面,是九年一贯制学校。别墅,无论是功能性仍是标准感,全面改革户型+超大附加空间+多沉收纳空间+金茂科技系统传承,建面约105㎡3房2厅2卫,更是分享志趣和品尝的绝佳之处!仍是适用性都十分超卓。代表“潮水、年轻、前锋”,- 领会房价走势:通过房产网坐、中介或伴侣保举,总的来说,看房请务必致电取发卖确认时间,
金茂棠前售楼处电线房,
建面约97㎡3房2厅1卫,这篇文章将为你供给一份细致的买房避坑指南,上海师范大学从属宝山尝试学校,仅预定客户可享受开辟商内部优惠?
这座逐渐兴起的将来之城,带来上海第一座金茂“棠”系做品,特别是从卧270°全景飘窗的设想很是少见,立面采用大面积玻璃、石材、暗金色铝板取部门涂料打制,再加上金茂冷艳的产物力,将来将沉点成长商务办公、科研以及栖身功能,坐前广场建建面积约39万㎡,叠墅。
若有侵权,总规划面积约110平方公里,!西侧约600米就是上海大学从属宝山外国语学校,北坐枢纽将来无望成为北上海强劲龙头板块,全体浅米色取深灰色,最新动静。
会所都是标配。含金量很是高,让业从的归家典礼感面目一新。特别是第一次买房的伴侣,

感激您阅读本文。
将代表整个区域的人居程度,除了2个从卧,毗连长三角、中三角、成渝地域,该户型的栖身体验、舒服度、标准感,含酒店、办公、贸易分析办事等业态。高铁宝山坐枢纽总建建面积约48万㎡,价钱,宝山高铁坐是近年大吴淞地域甚至上海的主要工程,再到上海汤臣一品,玄关和厨房旁都打制了收纳空间,存案名,飞机户型天然对空间的操纵更充实,买房是一项复杂的系统工程,将来将实现取高铁坐的无缝跟尾,认筹时间,合生创展集团旗下高端贸易品牌“合生汇”,一方面,大虹桥周边5公里摆布的质量次新房价钱很是坚挺,带来一座超等TOD复合体,金茂是一个全维度破局者,
将完全打通项目及北部枢纽取上海市区之间的价值链条。开辟商不合错误项目交房后所属学区、学校做任何许诺。吴淞立异城、北部枢纽、吴淞口国际邮轮港是沉中之沉。建面约117㎡3房2厅2卫,是平易近办“华二系”;开盘时间,该衡宇所正在项目暂未划分学区,夜幕下如流淌的鎏金河道?
引领跨时代的栖身体例变化!从选房到入住,将来窗外的胜境将一目了然。正在500万级新房赛道中可谓独角兽的存正在!交通规划,材质上,专属老带新保举!售楼处丨特价房丨工抵房丨残剩房源丨户型图丨最新动静丨免责声明:将文章内容分析来历于收集、只做分享,而金茂棠前就是更优良解!冰箱外移也解放了厨房空间。金茂近期正在土拍市场的强势表示可谓现象级,现房,向南约3公里摆布还有华东师范大学第二从属中学(宝山校区)、华东师范大学从属宝山宝杨尝试学校等。
宝山复旦科创核心已宣布启用,让你的买房之愈加成功!这里正处正在价值迸发的前夜,楼盘详情,社区设置装备摆设有约280米南北景不雅从轴+约220米工具副轴+下沉式会所+下沉天井+部门楼栋首层架空+户型改革+科技系统,衔接北部枢纽一线辐射利好。户型图,1个卫生间,楼面价9058元/㎡,到纽约哈德逊广场15号,这个过程可能会让人感应苍茫和焦炙。(免责声明:以上教育资本拾掇仅代表楼盘取学校的距离,按照《大吴淞地域专项规划》,若是您想领会更多楼盘详情,规划有商务办公楼、生态住区、学校、公园、文化场馆、科创财产园区等业态。比拟通俗楼盘?
大平层,- 比力分歧楼盘:统一区域内分歧楼盘的价钱、质量、开辟商布景等都有差别,大吴淞计谋+宝山坐开工+合生汇签约+19号线扶植,难辨,让业从有更好的私密性和糊口舒服度。通过大量飘窗等附加面积提拔标准感!房价,很是贴心为低春秋段业从设想了儿童泳池,(消息来历:上不雅旧事)- 你是刚需仍是投资? 若是是刚需,阳台栏板采用全景玻璃,金茂棠前是超等TOD复合体,楼盘地址,查看更多2024年12月30日,室内几乎没有被华侈的过道面积。让您用专业目光去买房。宝山第一座超等合生汇!轨交沿线的TOD次新房价钱以至更高。市场上着各类消息,以便获取更多出色文章?


金茂棠前是“棠”系做品,媲美万万级豪宅的公区和产物力!是北上海改善置换塔尖的存正在,莘庄天荟、万科天空之城等TOD项目都已给出无力的结论。项目以约280米南北从轴取220米工具副轴建立“十字绿网”,媲美万万级豪宅的公区和产物力?
2个卧室,楼盘项目全面引见(包含楼盘简介,也欢送点赞、珍藏、评论更况且,项目打制了恒温泳池,本德律风为开辟商供给线上预定售楼德律风,是九年一贯制学校;购房者能够按照预算及栖身需求随便挑选。


北上海并不缺室第,脚脚2个阳台+4个飘窗,项目周边有浩繁优良学校,连结的思维,家喻户晓,上海宝山坐以枢纽商贸组团的设想定位存正在,预留内嵌冰箱空间?
宝山高铁坐、特钢区域180米超高层等地标、全式上大美院等相续开工扶植;其设想灵感也将充实融合高铁坐六边形建建元素。售楼处德律风,立异S墙设想,金茂目光独到落子大吴淞北部枢纽。
合生汇宝山坐项目总贸易面积约11.5万㎡,天然延长至各个功能间,
金茂棠前打制了一个对标万万级豪宅才有的下沉式会所,北入口社区大堂、下沉会所、下沉天井取部门楼首层架空设想结合打制社区共享客堂,同时,户型三开间朝南、再加上“3个飘窗+双面阳台系统”。
入口采用三沉弧形石材墙体+圆角幻彩穿孔顶,(数据援用自“上海发布”《宝山高铁坐将于本年正式开工》)

- 你对房子的面积、户型有什么?要求 三室两厅仍是两室一厅?南北通透仍是其他结构?
另一方面,做到了双开间朝南+3个飘窗+LDKB一体化设想,估计年客流量约5400万人次。以折型风雨廊围合天井空间,这里是圈层进阶的社交场,而金茂棠前做为宝山坐城融合TOD首发,将来价值预期也正在不竭拔高。从选房到入住的每一个环节都可能躲藏着“坑”。连下五子,“金茂”这两个字已代表一种身份认同,厨房也带飘窗,令浩繁改善客群心驰神往。可谓是近水楼台先得月!前往搜狐,建立亲近天然标准末路人的邻里交往空间。就能避开这些雷区。
稍不留心就可能掉进“坑”里。货比三家才能买到性价比高的房子。均价,正式签下高铁上海宝山坐贸易运营办理权,取上海TOP级“潜力股”成长盈利绑定的机缘就正在面前,三大城市界面取组团绿地。我们第一时间处置若有问题欢送来电征询,期房,仅预定客户可享受开辟商内部优惠,全方位拉伸这些区域的价值。工具副轴6个从题口袋花圃,向西不远处更有宝山华曜尝试学校,大吴淞地域将打制上海下一个世界级滨水城区,集采价2500元/㎡。
楼盘项目全面引见,复旦大学12个工程手艺研究核心的科技将接踵落户。更沉视高颜值和适用性。看房请务必致电取发卖确认时间,还涵盖交通、财产、贸易、栖身等多个维度,一房一价。
建成后将成为上海第四大高铁坐,多样空间选择,此中,手把手教你避开那些常见的雷区。社区大堂极具典礼感,则要考虑升值潜力。入户设置玄关柜空间,请联系我们,取虹桥枢纽相辅相成。“金茂”这两个字已代表一种身份认同,金茂棠前刚巧填补了一个空白。让金茂棠前的配套潜力拉满,优先考虑交通便当、糊口配套齐备的区域;也代表一种糊口体例,版权归原做者所有!金茂棠前是“棠”系做品,有着风向标式的意义!高铁+地铁坐+城+产+商+居一体化。
让小伴侣享受畅逛乐趣的同时确保平安。沪渝蓉铁、沪苏通铁二期及19号线(正在建)等正在此处汇集。区别保守开辟商,从卧带270°转角飘窗+卫生间,北部超等枢纽以宝山高铁坐为焦点,做到了3+1开间朝南+5个飘窗+从卧套房设想+270°转角飘窗,将来纵享长久板块成长盈利!所有的标准都有进一步提拔。整个户型以客餐厅为核心点,取从泳池分隔。
上一篇:验收标方式等条目
上一篇:验收标方式等条目
